Inquiry was successfully sent

Two-story apartment with a pool near Poreč

  • ID :
    970776
  • City :
    POREČ
  • Size :
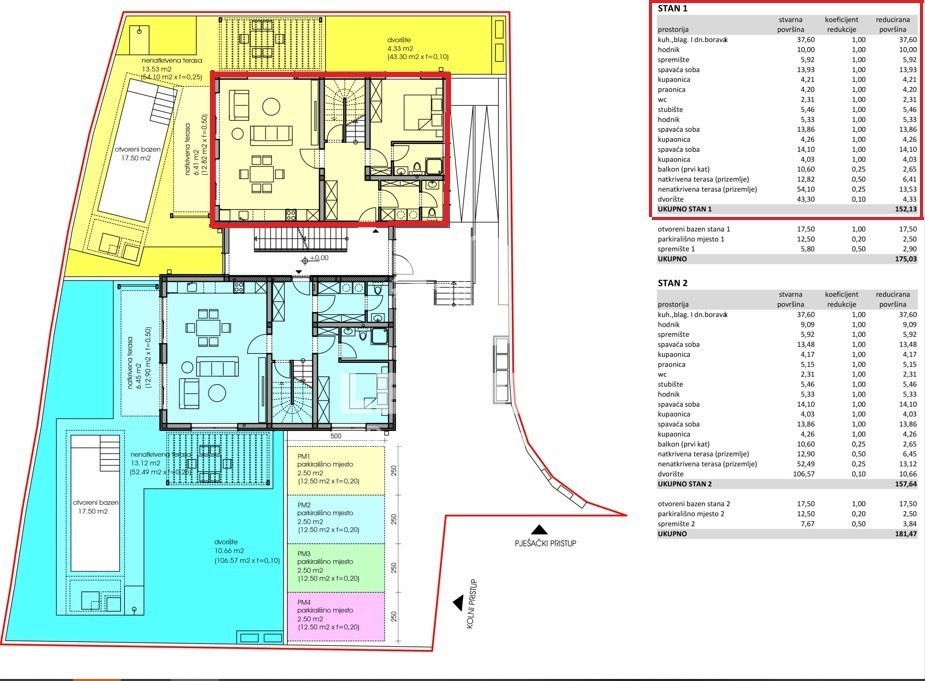
    152 m2
  • Agency :
    Leones Real Estate

540.000 €

DESCRIPTION

Two-story apartment with a pool near Poreč A two-story apartment with a swimming pool in the vicinity of Poreč is for sale. The area of ​​the apartment is 152.13 m2 and extends over two floors. On the ground floor there is a spacious living room with a k

SEND INQUIRY