Inquiry was successfully sent

Luxurious spacious apartment on the 2nd floor 800m from the sea

  • ID :
    1143179
  • City :
    POREČ
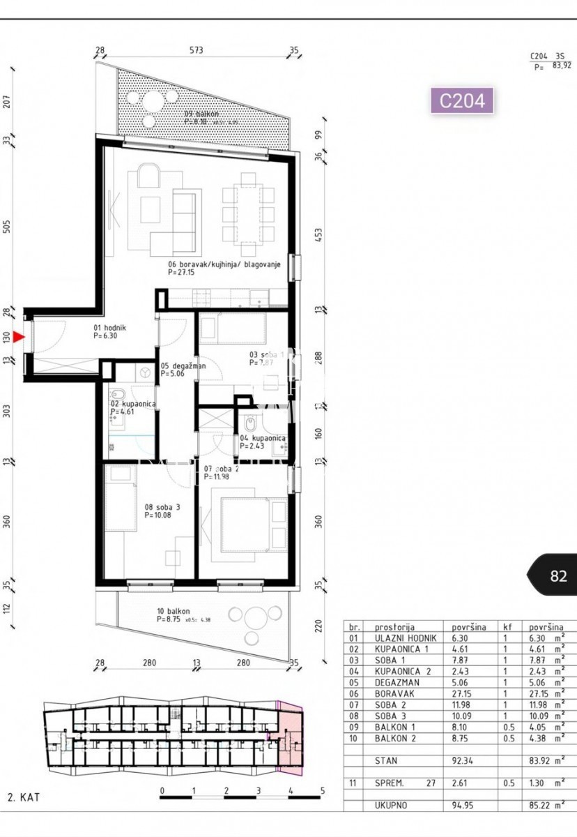
  • Size :
    85 m2
  • Agency :
    PARENTIUM PREMIUM REAL ESTATE

405.662 €

DESCRIPTION

Istria, Poreč - 800m from the sea This luxurious modern building with a total of 84 apartments divided into 2 buildings is located in an attractive location in Poreč, only 800m from the sea. Currently, building "C" is under construction and we offer you

SEND INQUIRY