Inquiry was successfully sent

Poreč, apartment under construction of 85 m2, 1st floor, approx. 800 m from the sea (airline)

  • ID :
    1049035
  • City :
    POREČ
  • Size :
    85 m2
  • Agency :
    SELETON nekretnine - Immobilien - Real Estate

327.000 €

DESCRIPTION

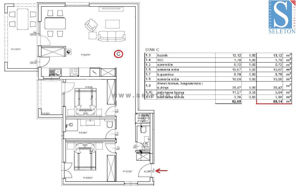
Poreč, in a quiet urban area, an apartment under construction with an area of 85.14 m² is for sale, consisting of a living room, kitchen, dining room, 2 covered terraces, hallway, 2 bedrooms, storage room, bathroom and toilet. The apartment is located on

SEND INQUIRY