Inquiry was successfully sent

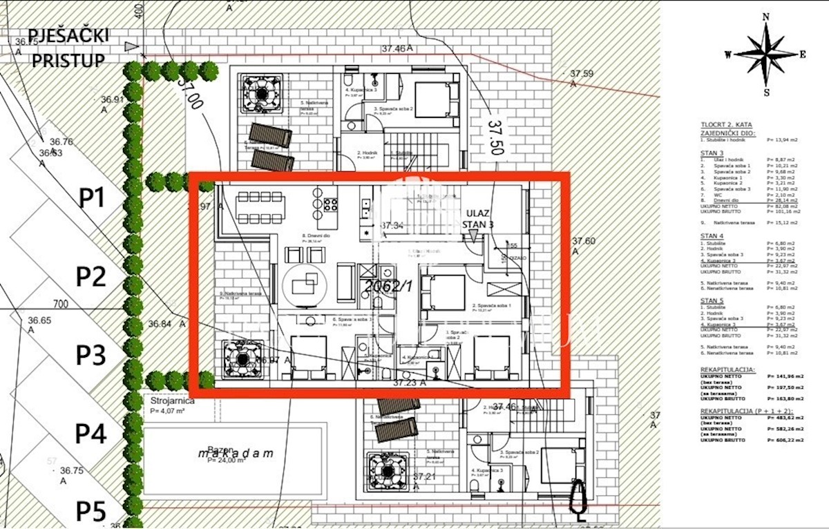
Apartment in a building with an elevator, 800 m from the sea

  • ID :
    1036587
  • City :
    POREČ
  • Size :
    94 m2
  • Agency :
    PARENTIUM PREMIUM REAL ESTATE

480.000 €

DESCRIPTION

Istria, Poreč, - apartment in a building with an elevator and a view of the sea. This beautiful apartment on the second floor is for sale in a new and modern building, only about 800 m from the sea. The apartment offers an open view of the sea and the su

SEND INQUIRY